増築工事(内部仕上げ・完成)

増築部分が完成しました。
工事中

既存壁内の筋交い
工事中

壁内部に断熱材を施工していきます
工事中

天井部分と壁部分は、断熱材の種類を変えました
工事中

工事中

工事中

工事中

石膏ボードを貼りました
工事中

反対側には新設のクローゼットを施工します
工事中

クローゼット内の上部の棚部分です
工事中

クローゼットの扉を取り付けました
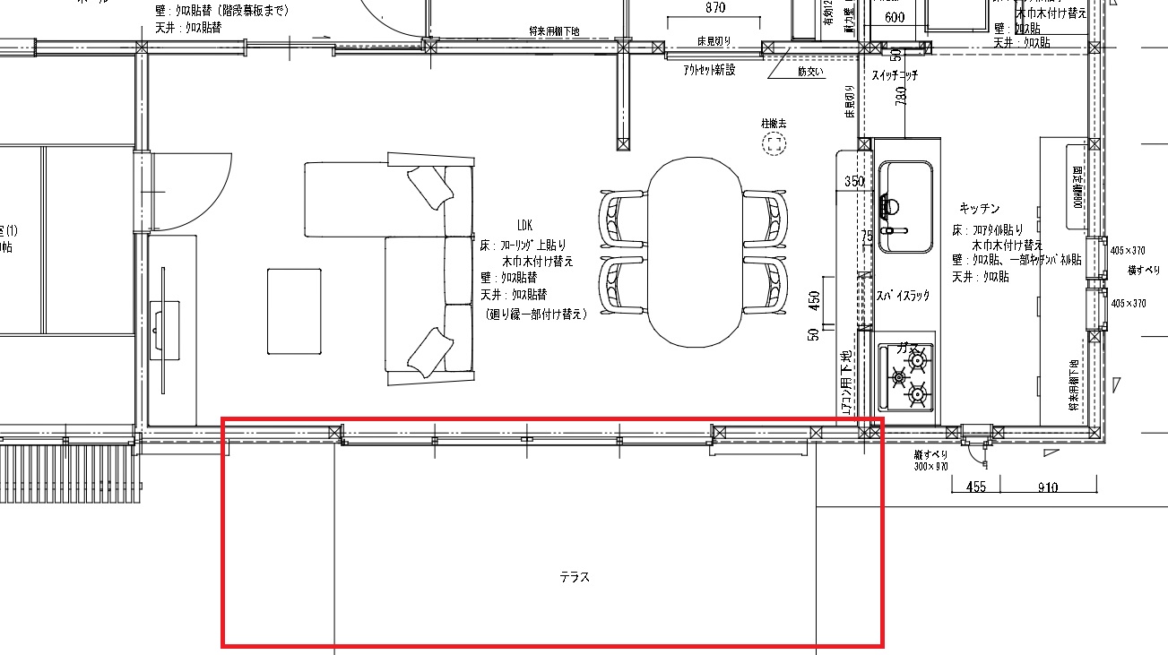
工事前

この部分を増築します
工事後

完成後はこの広さになる計画です
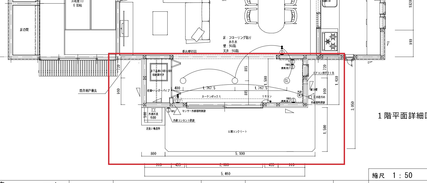
施工前

以前は向かって右側には、掃き出し窓がありました。
施工後

今回、掃き出し窓から先の部分を増築させていただきました。

完成した内部です

新設クローゼット側のレイアウトです

増築部分を正面から

空間が広がる事で、更に開放感が出ました。
ちなみにキミは、この柵から入ったらダメみたいだよ!笑
以下、基礎工事編と土台・建て方編は下記をご覧ください 👇
