RC造2階建て リノベーション
RC造戸建住宅リノベーション工事の内部工事(1階部分)のご紹介です。

コンロ部分は「トリプルワイドIHクッキングヒーター」を採用しました。

ダイニング側からのアングルです。

リビング側からのアングルになります。
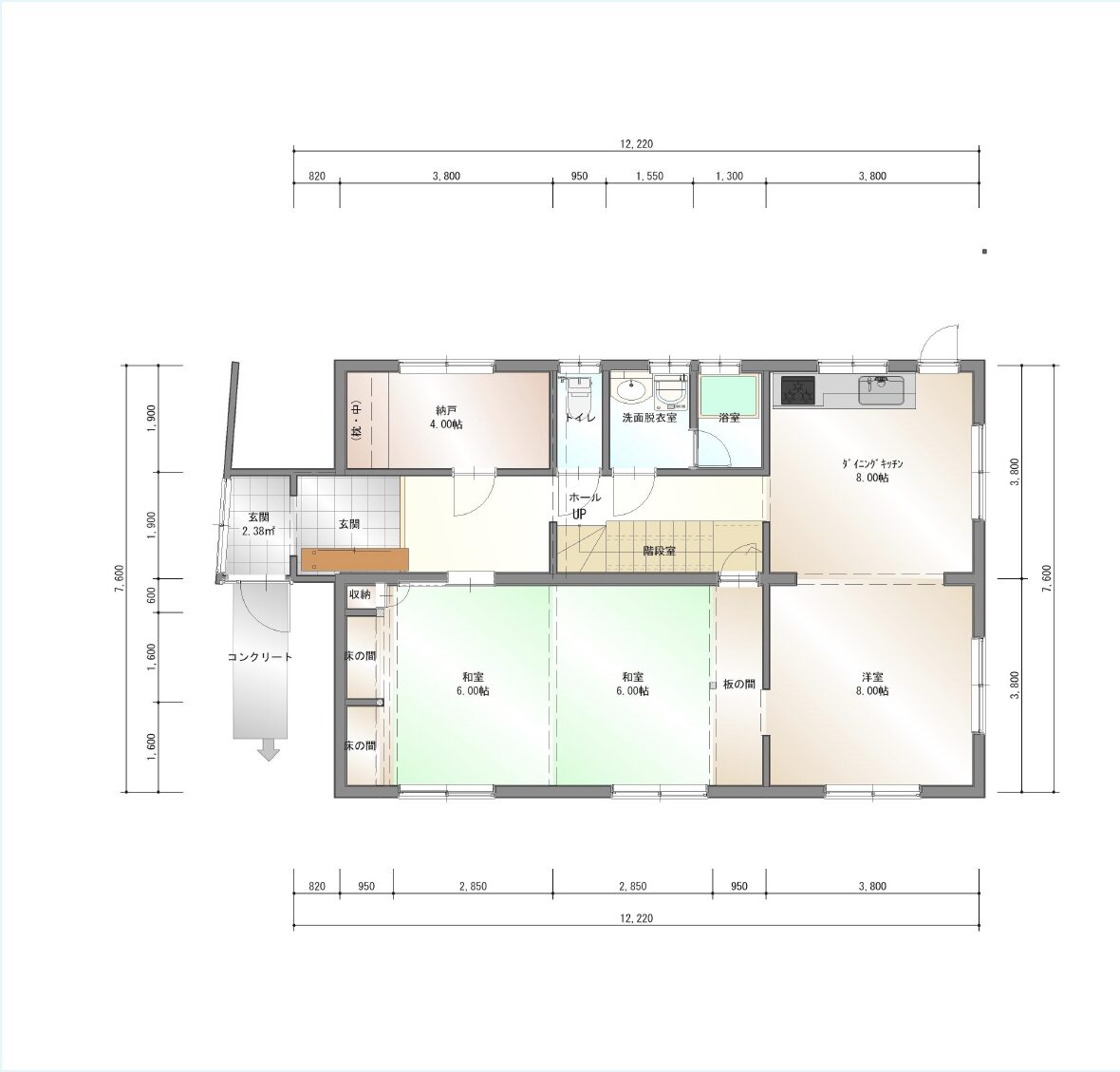
既存図面

提案図面

まずは工事をする「1階部分のレイアウト」を決める為、お打ち合わせをします。
既存の変更不可能な構造部分を考慮した「実際に工事する図面」となります。
工事前

以前は和室が二間あり、一間には「床の間」や「仏間」の空間がありました。
工事後

こちら側の空間は「リビング」へと変化させ、壁側にテレビを置けるようにしました。
工事前

上部にランマを挟んだ、もう一つの和室側になります。
工事後

こちら側は「ダイニングとキッチンの空間」へと変化させました。
工事前

以前は、和室の奥に「洋室」がありました。
工事後(洋室②)

洋室を作り直す際に、窓を1カ所壁にして、収納も充実させました。
工事前

以前は、既存洋室の続き間で「台所」がありました。
工事後(洋室①)

続き間だった方をクローゼットに替え、洋室へと変化させました。
工事前

以前の玄関に入って左側には「納戸」がありました。
工事後

その空間には「ユニットバス」を計画しました。
工事前

以前の納戸の反対側です。
工事後

以前あった窓を小さくして、洗面所の空間へと変化させました。
工事前

以前の洗面台があった場所になります。
工事後

窓を少し小さいサイズに交換して、洗濯機置き場と洗濯物を干せる空間へと変化させました。
工事前

以前は洗面台の右側にお風呂がありました。
工事後

お風呂の空間だったところは、棚を作り、広めの納戸へと変化させました。
工事前

以前のトイレになります。
工事後

トイレの位置だけは、以前と同じ場所で計画しました。その際に窓は撤去して壁で塞ぎました。
工事前

以前の玄関があった位置です。
玄関ドアは更に外側に取り付けてありました。
工事後

新設玄関ドアを少し手前に取り付けて、シューズボックスは以前の逆位置に取り付けました。
工事前

以前の階段部分になります。
工事後

まずは、以前の階段下側部分から隣接するお部屋に「行き来ができるように」しました。
工事前

以前の階段部分後ろ側です。
工事後

壁をふかして外側に引き戸を作りましたので、その空間内に棚を作成しました。
それでは、2階編へ続きます。
